Wendell 8′ Privacy Fence Master CAD
Material List – 8×6 Panel
| ITEM | QTY | DIMENSIONS |
|---|---|---|
| Top Rail | 1 | 1.5″ x 5.5″ x 71.5″ |
| Mid Rail | 1 | 1.5″ x 5.5″ x 71.5″ |
| Bottom Rail | 1 | 1.5″ x 5.5″ x 71.5″ |
| Metal | 3 | 1.25″ x 1.75″ x 71.5″ |
| U-Channel | 4 | 1.25″ x 1.5″ x 39.5″ |
| T&G Pickets | 16 | 0.875″ x 11.3″ x 43″ |
Material List – 8×8 Panel
| ITEM | QTY | DIMENSIONS |
|---|---|---|
| Top Rail | 1 | 1.5″ x 5.5″ x 95.5″ |
| Mid Rail | 1 | 1.5″ x 5.5″ x 95.5″ |
| Bottom Rail | 1 | 1.5″ x 5.5″ 95.5″ |
| Metal | 3 | 1.25″ x 1.75″ x 95.5″ |
| U-Channel | 4 | 1.25″ x 1.5″ x 39.5″ |
| T&G Pickets | 16 | 0.875″ x 11.3″ x 43″ |
Material List – 8′ x 42.5″ Gate
| ITEM | QTY | DIMENSIONS |
|---|---|---|
| Socket Posts | 2 | 4″ x 4″ x 76″ |
| Post Cap | 2 | 4″ x 4″ |
| Top Rail | 1 | 1.5″ x 5.5″ x 42″ |
| Mid Rail | 1 | 1.5″ x 5.5″ x 42″ |
| Bottom Rail | 1 | 1.5″ x 5.5″ x 42″ |
| Metal | 1 | 1.25″ x 1.75″ x 41.5″ |
| U-Channel | 4 | 1.25″ x 1.5″ x 39.5″ |
| Cross Brace | 2 | Cross Brace |
| T&G Pickets | 6 | 0.875″ x 11.3″ x 43″ |
| Vinyl Fence Glue | 1 | N/A |
| Cross Brace Screws and Caps | 1 | N/A |
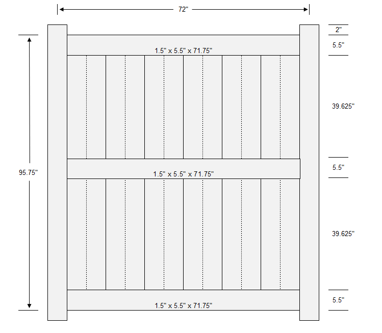
Material List – 8′ x 65″ Gate
| ITEM | QTY | DIMENSIONS |
|---|---|---|
| Socket Posts | 2 | 4″ x 4″ x 76″ |
| Post Cap | 2 | 4″ x 4″ |
| Top Rail | 1 | 1.5″ x 5.5″ x 64.5″ |
| Mid Rail | 1 | 1.5″ x 5.5″ x 64.5″ |
| Bottom Rail | 1 | 1.5″ x 5.5″ x 64.5″ |
| Metal | 3 | 1.25″ x 1.75″ x 64″ |
| U-Channel | 4 | 1.25″ x 1.5″ x 39.5″ |
| Cross Brace | 2 | Cross Brace |
| T&G Pickets | 10 | 0.875″ x 11.3″ x 43″ |
| Vinyl Fence Glue | 1 | N/A |
| Cross Brace Screws and Caps | 1 | N/A |